

Curva de arándanos y mandarinas
Una vivienda pequeña que se expande a través del gesto, el orden y el color
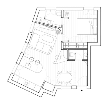
“Curva de arándanos y mandarinas” es la forma de nombrar una transformación que parte de una vivienda de 50 m² rígida y compartimentada, donde los espacios vivían separados y la circulación se interrumpía. El proyecto responde a una pregunta sencilla: ¿cómo hacer que una casa pequeña funcione como una grande?
La clave está en un gesto central: una pared curva que sustituye al tabique tradicional y organiza la planta sin puertas ni cortes. La curva suaviza el recorrido, conecta estancias y permite que la luz fluya. De ella nace una mesa empotrada en azul, un rincón de trabajo integrado que aprovecha al máximo cada centímetro sin saturar.
El color es el pulso del proyecto. El naranja vivo aparece en la cocina y el aseo; el azul intenso define la mesa. Sobre una base de blanco cálido y madera clara, estos tonos no decoran: acentúan, dan ritmo, marcan puntos de interés y hacen que el espacio, aunque compacto, resulte dinámico y alegre.
Materiales suaves, mobiliario a medida y una distribución revisada —incluyendo un baño optimizado y un aseo adicional— construyen una atmósfera ordenada y luminosa, donde cada decisión suma claridad y bienestar.
“Curva de arándanos y mandarinas” demuestra que el diseño puede amplificar lo cotidiano. Que 50 m², bien pensados, pueden ser fluidos, versátiles y llenos de vida. Un hogar donde el orden se dibuja con curvas y la personalidad se expresa en color.
Datos:
Superficie: 48 m2
Localidad: Madrid
Año: 2025
Tipología: Vivienda
Fotografía: Nivelarte
Previo
Reformado


Previo
Reformado


Previo
Reformado


Previo
Reformado












